SHRINK THIS HOUSE

Florida InsideOut wrote: Everyone and everything is going green. You can't turn on the news or open a magazine without seeing some play on the phrase. We thought the timing was right for a competition, our third, that challenged the current trend in big, bulging houses modern, Mediterranean, or otherwise.

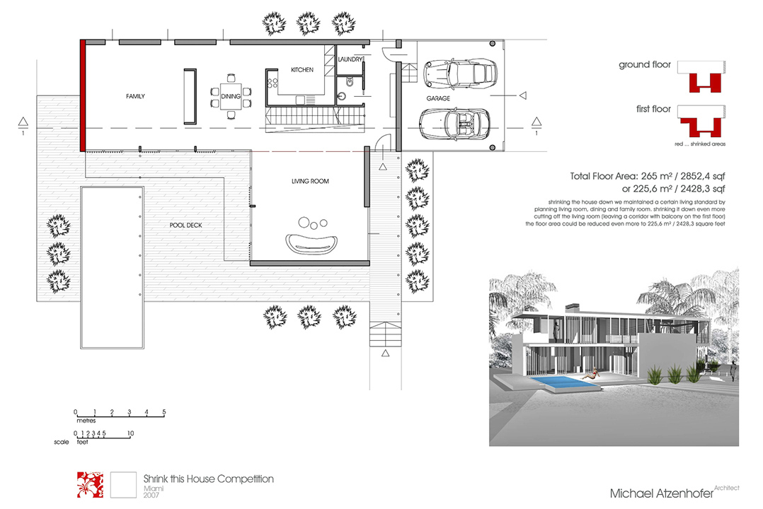
Shrink This House asked our readers to transform a 5,687-square-foot, modern house in Miami Beach into a smaller, environmentally friendly one. Entries poured in from all over the world: Bali, Austria, Ireland, Germany, Colombia, Mexico, Japan, totaling more than 60.

Miami Shrink this House 02
Miami Shrink this House 03

About the winning entry by Michael Atzenhofer: „When you look at all the louvers and the geometry of the house it looks like it has a lineage to Florida's modern past, yet also has some relationship to the original house. This is more of a conceptual format ...it doesn't just cut up the existing one.”

- Max Strang
Member of the jury

Miami Shrink this House 04
Miami Shrink this House 05
  • + INFO

    LOCATION: Miami, Florida

    PROJECT: Architect & Friends
    IMAGES: Florida InsideOut, Michael Atzenhofer

    PRESS: l'ARCA 230 (view)
    Florida InsideOut 2007 (view)